
Project: Herbestemmen van een monument
Functie: Gemengd programma, wonen
Specialiteit: Monumentaal pand, VO-fase
Bij Rothuizen heb ik de herbestemming van een monumentaal pand mogen ontwerpen. Daarbij was de vraag vanuit de opdrachtgever om verschillende functies te herbergen. Eén daarvan betreft een proeflokaal op de begane grond waar kookworkshops kunnen worden gehouden voor groepen. Daarnaast moest er plek zijn voor een microbrouwerij om zich in het pand te vestigen. Een kastenwand van circulaire materialen verbergt de trap richting de verdieping en herbergt tegelijkertijd de ketels voor de microbrouwerij.
In de directe omgeving van het project wordt een nieuwe wijk gerealiseerd. De energieleverancier voor deze wijk wilde deze casus als voorbeeldproject gaan gebruiken en het proces van het energie opwekken en leveren tentoonstellen. Dit was echter qua regelgeving niet mogelijk binnen het monumentale pand, waardoor een bestaand deel dat als niet monumentaal was aangeduid plaats heeft gemaakt voor een nieuwe massa.
Verder is er op de begane grond ruimte voor de energieleverancier om een klein kantoor te realiseren. In de voormalige kleine schuur is een expositieruimte ontworpen die voor verschillende doeleinden kan worden gebruikt. Boven het proeflokaal is er ruimte gemaakt voor een vergaderruimte op een entresol. Deze is te bereiken via een loopbrug. Op deze wijze is er een ruimtelijke en open benedenverdieping gerealiseerd waarbij de originele houten dakbalken in het zicht zijn gebleven. Op de verdieping is tevens een studio gelegen welke een eigen afgesloten entree heeft.
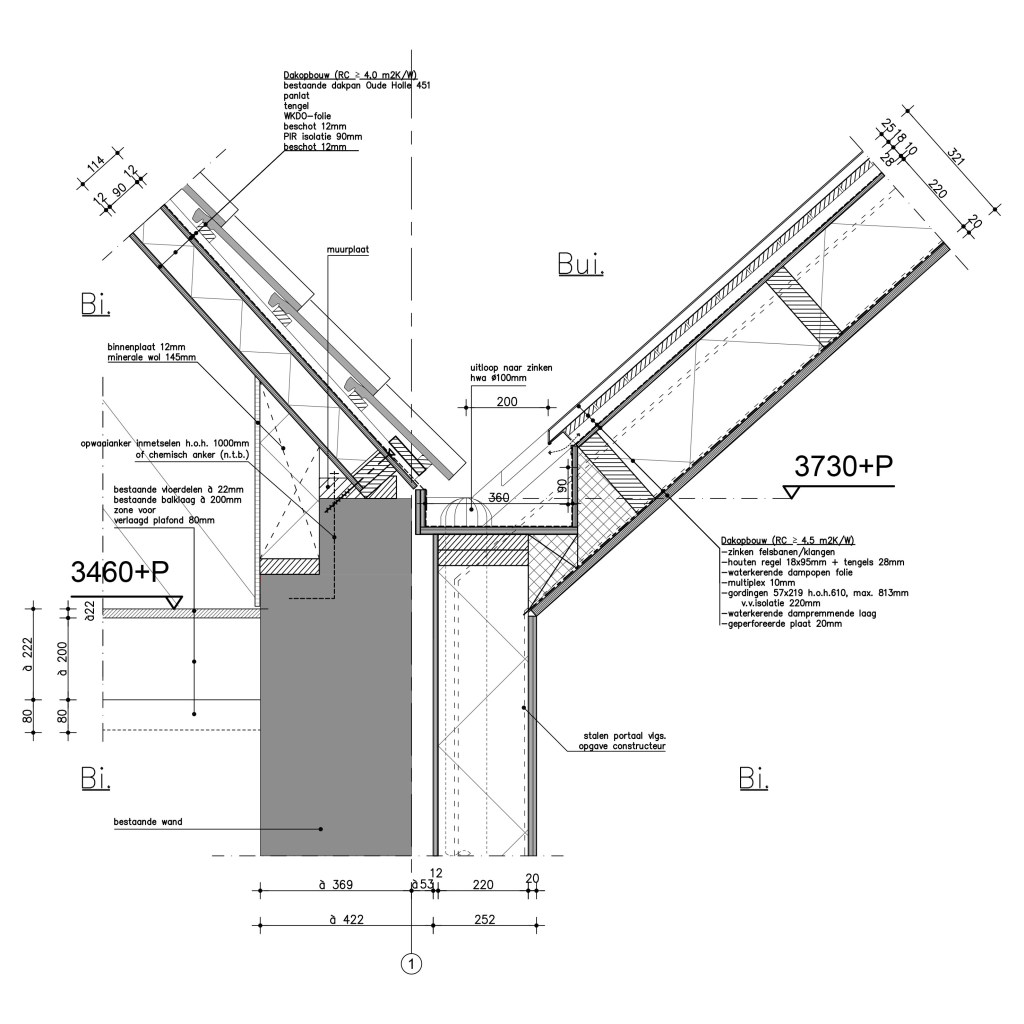
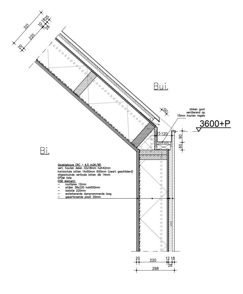
Na het schetsontwerp heb ik meegewerkt aan de VO-fase. Hierin heb ik onder andere verschillende details getekend voor de bouwkundige ingrepen die in het schetsontwerp waren opgenomen.
De kap was in een dermate slechte staat dat is besloten om een volledig nieuwe toe te passen. Deze wordt aan de bestaande gevelmuren bevestigd in plaats van de houten dakbalken, aangezien deze zich in een te slechte staat bevonden.

















