
Project: 14 Zorgappartementen
Functie: Woon- zorgcomplex
Specialiteit: ontwerpfase
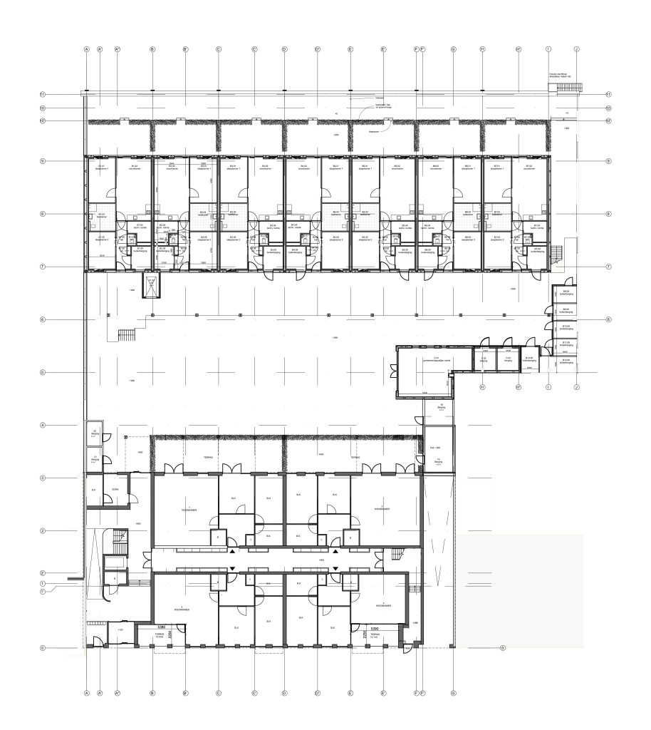
Op de plek van dit project stond een verlaten pand dat rijp voor de sloop was. Daarbij diende de onderliggende parkeergarage wel behouden te blijven. Vanuit de opdrachtgever werd Rothuizen gevraagd om een appartementencomplex te ontwerpen waar zowel zelfstandige als zorgappartementen gerealiseerd konden worden.
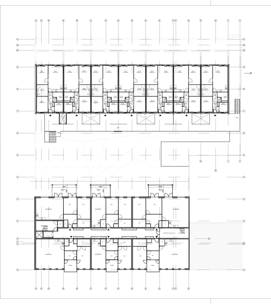
Het ontwerp huist verschillende appartementtypes. Op de begane grond zijn de zorgappartementen gelegen. De eerste verdieping bevat zes kleinere appartementen, de bovenste verdieping bestaat uit vier ruime appartementen. Allen kunnen in een later stadium worden gebruikt als zorgappartement.

Vanuit welstand bestond er een sterke wens naar verticaliteit in het plan. Daarom is gekozen voor smallere gevelopeningen met glas dat tot aan de vloer loopt. Verticaal metselwerk met een donkere voeg zorgt voor de verticale verbinding en een sterke geleding in de gevel. Daarbij heb ik nog een extra variant gemaakt waarbij de verticaliteit wordt versterkt bij de buitenruimtes aan de straatzijde.
De achterzijde van het complex bevat een open en private stadstuin waar de bewoners gezamenlijk gebruik van kunnen maken. Riante buitenruimtes zorgen voor een sterke relatie tussen binnen en buiten en een aangename woonbeleving. Een houten constructie draagt de diepe buitenruimtes van de eerste verdieping en biedt tegelijkertijd ruimte voor natuurlijke begroeiing. Dit zorgt voor een behaaglijk en attractief geheel samen met de stadstuin. Het wordt zo een oase van rust midden in het centrum van Middelburg.






