
Project: Verbouwing blokhut
Plaats: Lohengrinlaan 1-A, Eindhoven
Functie: Utiliteit
Specialiteit: Vergunningstraject
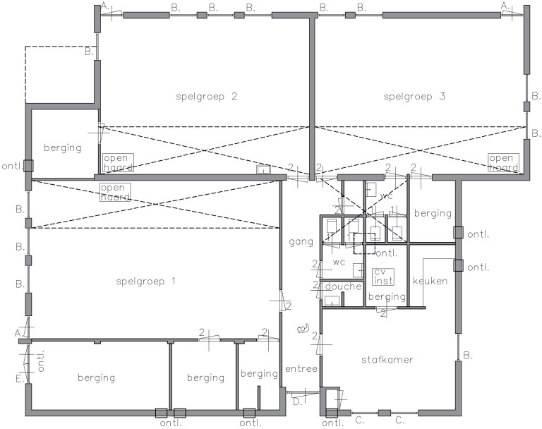
Door de scouting Livingstone te Eindhoven werd mij gevraagd om met een nieuw plan te komen voor hun blokhut. De aanwezige keuken was te klein, het sanitair was niet voldoende en verouderd en er bestond een behoefte aan een afgescheiden ruimte voor de jongeren.
Vanwege budgettaire redenen is gekeken om met zo min mogelijk ingrepen een zo groot mogelijk resultaat te verkrijgen, de plattegrond is daarom grotendeels intact gebleven. Opslagruimte is zeer belangrijk. Om meer ruimte in de blokhut te creëren is er een externe berging ontworpen met overkapt terras. Dit biedt ruimte voor een grotere afgescheiden keuken en een jongerenruimte. Daarnaast is de blokhut toegankelijker gemaakt met een mindervalidentoilet. Het ontwerp is in een dusdanige mate uitgewerkt zodat het vergunningaanvraagstraject direct gestart kon worden.

